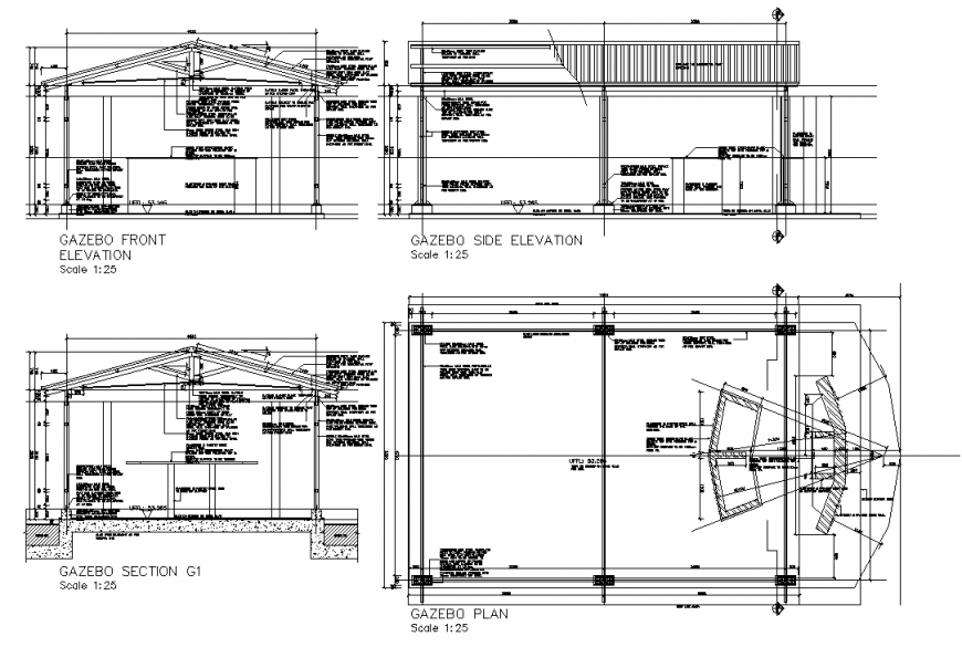
House Roofing structure  detail elevation and section 2d view layout autocad file

House Roofing structure  detail elevation and section 2d view layout autocad file
Profile

Uploaded by:

Eiz

Luna

Description

House Roofing structure  detail elevation 2d view layout autocad file, front elevation detail, principal rafter detail, naming detail, dimension detail, scale 1:25 detail, founation detail, column detail, hatching detail, cut out detail, top elevation detail, side elevation detail, section line detail, purlin detail, section detail, stuts detail, etc.

Profile

Uploaded by:

Eiz

Luna

find Latest

Related Files

WhatsApp Chat