Section house plan dwg file
Description
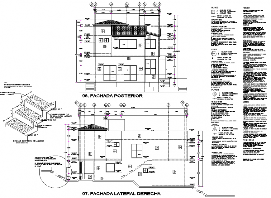
Section house plan dwg file, section A-A’ detail, section B-B’ detail, centre line detail, dimension detail, naming detail, leveling detail, stair section detail, specification detail, furniture detail in door and window detail, roof section detail, stair section detail, concrete mortar detail, etc.
Uploaded by:
Eiz
Luna
