Column with beam joint section plan dwg file
Description
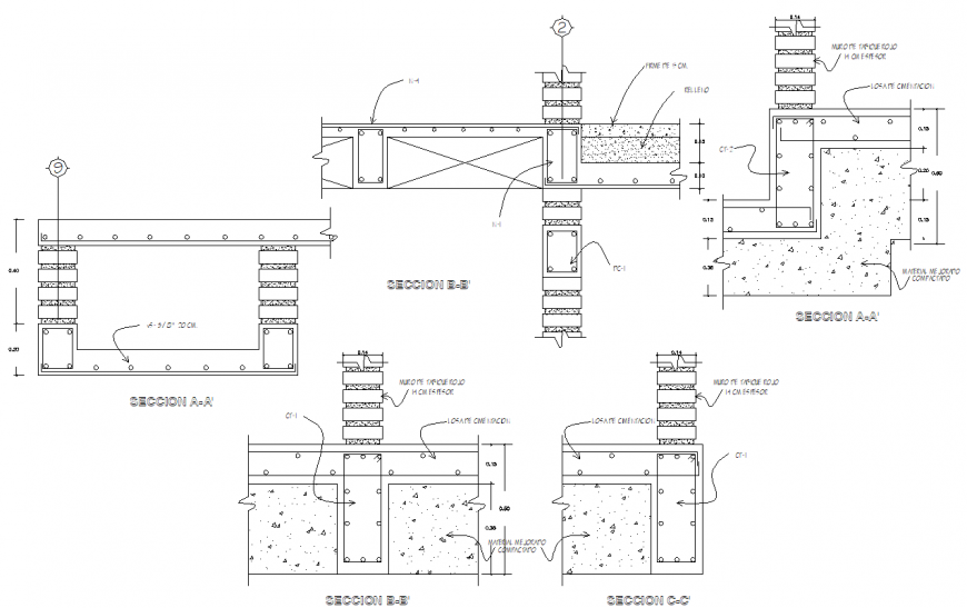
Column with beam joint section plan dwg file, centre line plan detail, dimension detail, naming detail, brick wall section detail, column section detail, concrete mortar detail, reinforcement detail, boolt nut detail, cut out detail, section A-A’ detail, section B-B’ detail, etc.
Uploaded by:
Eiz
Luna

