Round shape column section autocad file
Description
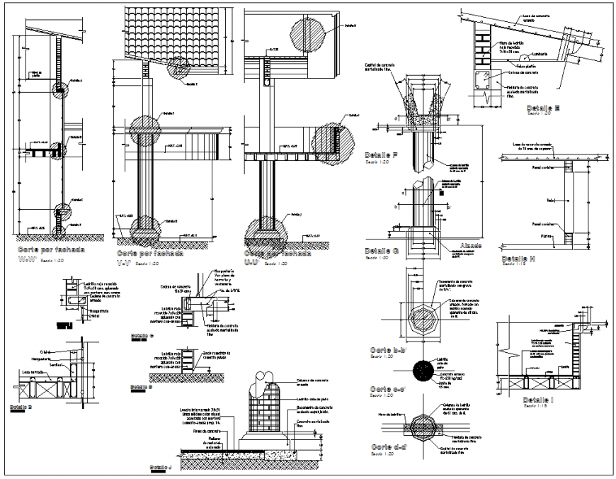
Round shape column section autocad file, dimension detail, naming detail, concrete mortar detail, brick wall detail, reinforcement detail, bolt nut detail, roof section detail, cut out detail, section line detail, ground floor level detail, hatching detail, etc.
Uploaded by:
Eiz
Luna

