Section X-X’ beam planning layout file
Description
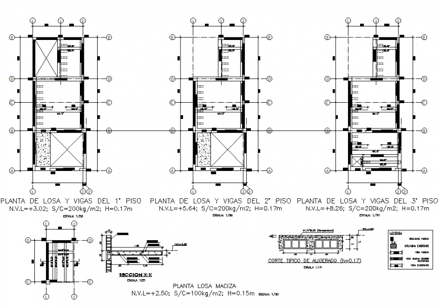
Section X-X’ beam planning layout file, concrete mortar detail, centre lien detail, dimension detail, naming detail, reinforcement detail, legend detail, cut out detail, height = 0.17m detail, etc.
File Type:
DWG
File Size:
—
Category::
Construction
Sub Category::
Concrete And Reinforced Concrete Details
type:
Gold
Uploaded by:
Eiz
Luna

