Beam section shop structures detail dwg file
Description
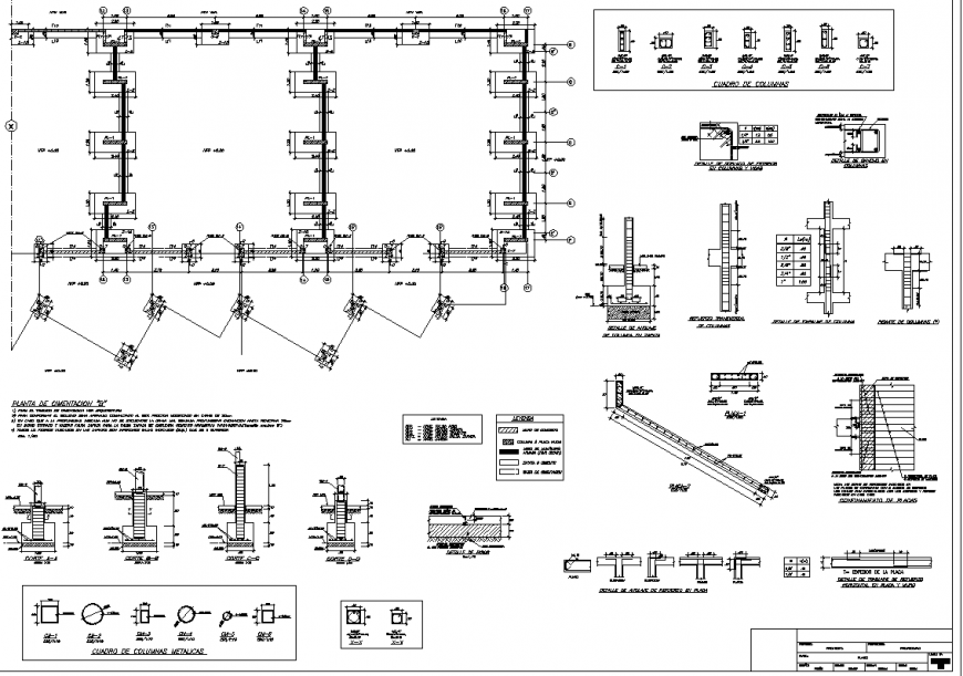
Beam section shop structures detail dwg file, centre lien plan detail, foundation plan and section detail, column section detail, reinforcement detail, dimension detail, naming detail, bolt nut detail, stirrup detail, specification detail, bent up wire detail, hatching detail, etc.
File Type:
DWG
File Size:
1.4 MB
Category::
Construction
Sub Category::
Concrete And Reinforced Concrete Details
type:
Gold
Uploaded by:
Eiz
Luna

