Percolation well yzanja plan and section layout file
Description
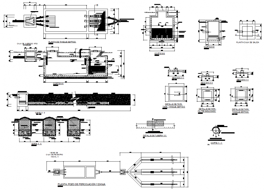
Percolation well yzanja plan and section layout file, section A-A’ detail, section B-B’ detail, section C-C’ detail, section D-D’ detail, reinforcement detail, bolt nut detail, water level detail, section line detail, pipe line detail, landscaping detail in tree and plant detail, etc.
Uploaded by:
Eiz
Luna

