Cistern tank foundation plan and section layout file
Description
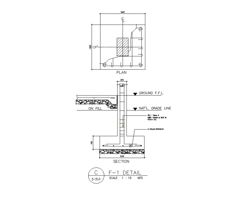
Cistern tank foundation plan and section layout file, dimension detail, naming detail, section line detail, reinforcement detail, bolt nut detail, stone detail, stirrup detail, scale 1:5 detail, etc.
Uploaded by:
Eiz
Luna

