Door details
Description
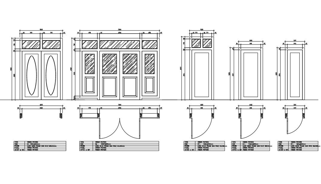
Door details in a in a layout plan, elevation details , roof plan, wooden details , door frame details.
File Type:
Autocad
File Size:
261 KB
Category::
Dwg Cad Blocks
Sub Category::
Windows And Doors Dwg Blocks
type:
Free
Uploaded by:
helly
panchal

