Hotel building detail elevation 2d view layout autocad file
Description
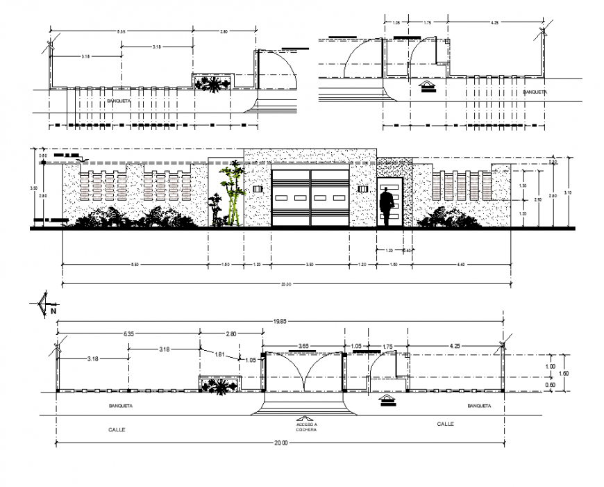
Hotel building detail elevation 2d view layout autocad file, plan view detail, front elevation detail, door and window detail, wall detail, stair detail, landscaping trees and plants detail, dimension detail, people detail, hatching detail, north direction detail, etc.
Uploaded by:
Eiz
Luna

