Hygiene services sanitary section with plan cad drawing details dwg file
Description
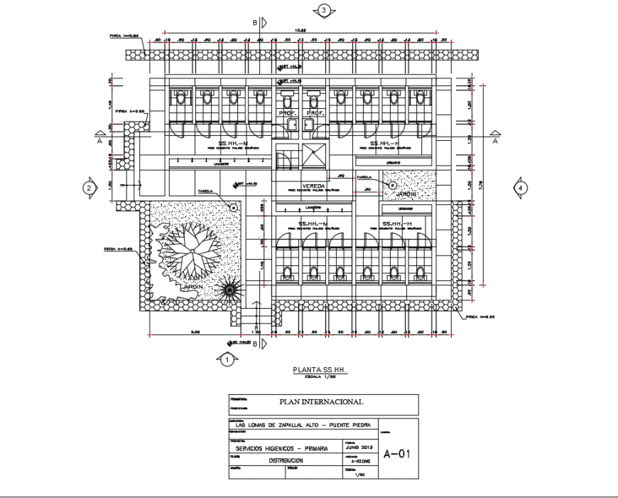
Hygiene services sanitary section with plan cad drawing details that includes a detailed view of main entry gate, mini front garden, tree view, lobby, passage, plumbing details, toilet equipment details, corridor details, lobby details, dimensions details, indoor doors and ventilation, toilet sheets, basing top view and much more of sanitary facilities.
File Type:
DWG
File Size:
238 KB
Category::
Interior Design
Sub Category::
Bathroom Interior Design
type:
Gold
Uploaded by:
Eiz
Luna

