University elevations, sections and floor plan details with terrace cad drawing details dwg file
Description
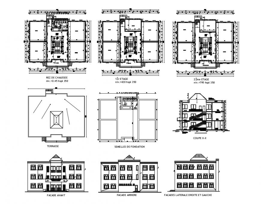
University elevations, sections and floor plan details with terrace cad drawing details that includes a detailed view of all sided elevation details like front, back and side, facade sectional details with doors and windows, staircases, ground floor plan layout details, first floor plan layout, second floor plan layout details, terrace details, foundation plan details, dimensions details and much more of university project.
Uploaded by:
Eiz
Luna
