False ceiling with pre-coverage cad constructive details dwg file
Description
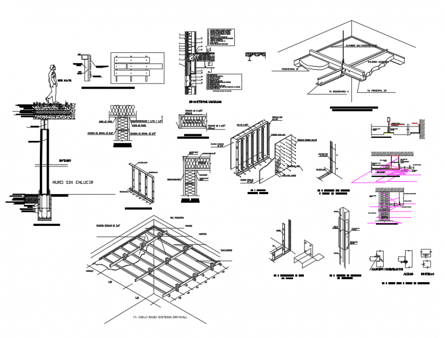
False ceiling with pre-coverage cad constructive details that includes a detailed view of placement of luminaire in the f.c.r. of fiber plates, mineral types zumtobel staff panos-hf-200, detail "a" detail of change of level of acoustic tiles, isometry of baldosa acustica, general plant, detail "c" false sky skull of flying and closing, main tee profile of suspension system 3.66 15/16 white color galvanized wire number 12 minimum 6 turns of tilting, cielo raso of acoustic tiles of mineral fiber and much more of false ceiling details.
Uploaded by:
Eiz
Luna

