Pluvial drainage of school plumbing construction with downs put typical details dwg file
Description
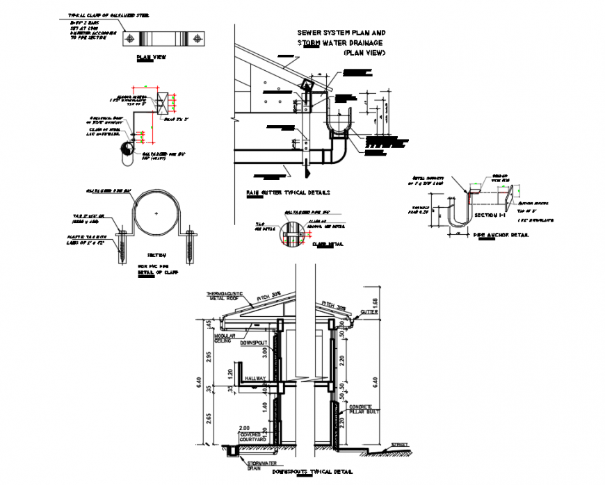
Pluvial drainage of school plumbing construction with downs put typical details that includes a detailed view of cover protection hm , separating layer, thermal insulation. "is over" panel type pf, formed sheet for alabardilla, shaped plate for bead seaming, waterproofing pa, waterproofing, slope formation layer, elastic expansion joint, aluminum joinery stud, angular anchor, aluminum joinery crosspiece, anchoring to allow movement by dilation, anchor screw, veneer, elastic gasket for glass, elastic sealing gasket, double sheet glass, Water-resistant concrete treatment, false ceiling of plaster plates, false ceiling fastening, profile, ceramic tile, cement-glue adhesive and much more of school drainage details.
Uploaded by:
Eiz
Luna
