electrical installation house room
Description
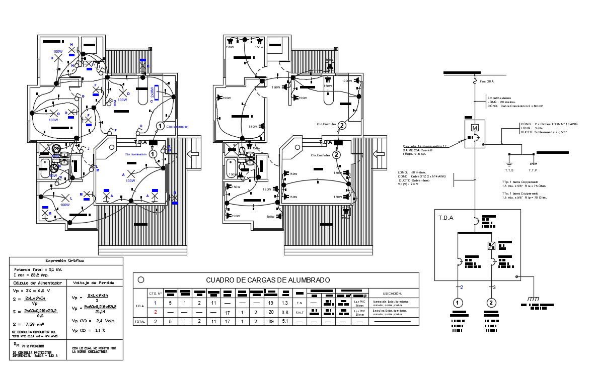
A transmission substation connects two or more transmission lines. electrical installation house room.
File Type:
Autocad
File Size:
128 KB
Category::
Electrical
Sub Category::
Architecture Electrical Plans
type:
Free
Uploaded by:
Priyanka
Patel
