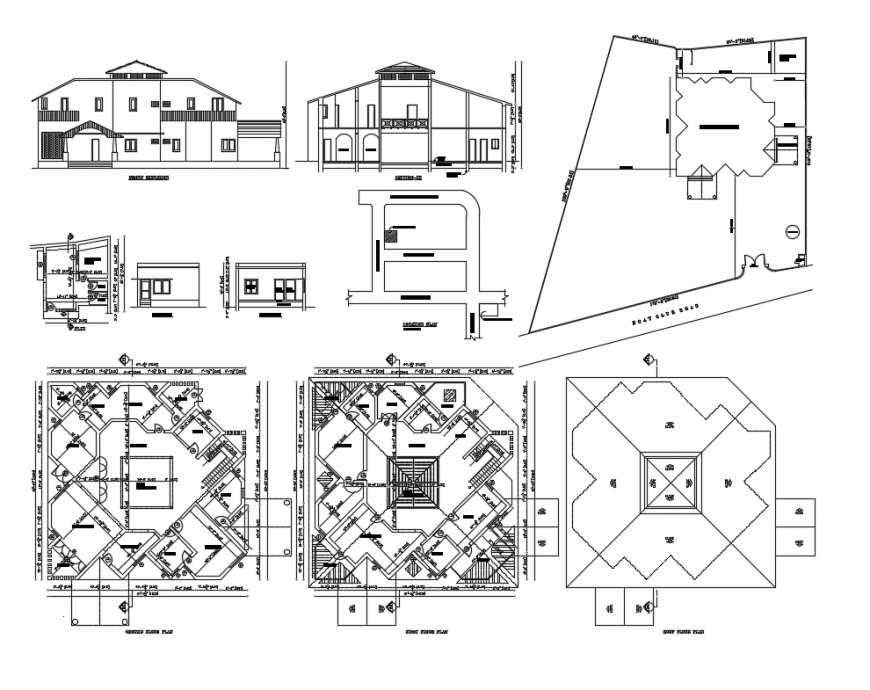
Two-flooring house elevation, section and floor plan architecture cad details dwg file
Description
Two-flooring house elevation, section and floor plan architecture cad details that includes a detailed view of front and back elevations details, all sided sectional details, roof floor plan details, site plan details, location plan flooring view, doors and windows view, staircase view, balcony view, wall design, dimensions, roof, floor plan with drawing room, living room, family hall, kitchen, dining area, indoor staircases, laundy area, balcony, bedroom, master bedroom, toilets and bathroom, indoor doors, furniture details and much more of house project.
Uploaded by:
Eiz
Luna

