Foundation plan of first and second floor of apartment flats structure constructive details dwg file
Description
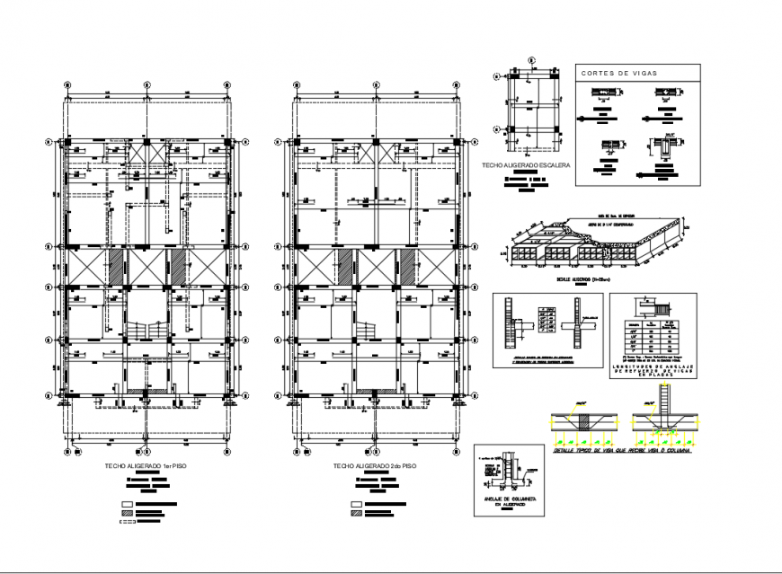
Foundation plan of first and second floor of apartment flats structure constructive details that includes a detailed view of that includes a detailed view of Reinforced concrete parapet, Stuffed with tezontle, average thickness, Stuck with cement-sand mortar prop, Waterproofing based on prefabricated membrane, Wall concrete hollow block smooth finish, based on granitic acrylic resins, Hollow block wall heavy type of cm, common finish, joined with sand cement mortar with horizontal reinforcement and drowned castles, Galvamet monomuro panel and thick, finished with white pre-lacquered galvanized steel sheet, finished and much more of construction details.
Uploaded by:
Eiz
Luna

