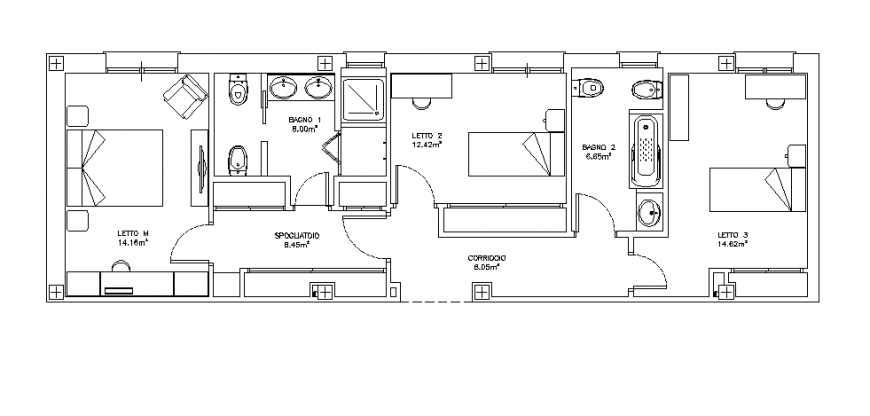
Detail hotel building elevation and plan layout dwg file
Description
Detail hotel building elevation and plan layout dwg file, room detail, area detail, wall detail, furniture detail, toilet and sink detail, bed and table detail, corridor detail, door and window detail, hatching detail, room area detail, etc.
Uploaded by:
Eiz
Luna

