Hotel building construction plan layout 2d view dwg file
Description
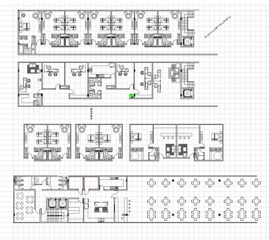
Hotel building construction plan layout 2d view dwg file, plan view detail, furniture detail, table and chair detail, floor detail, wall detail, room detail, toilet and bathroom detail, hatching detail, bed detail, reception desk detail, floor level detail, staircase detail, elevator detail, etc.
Uploaded by:
Eiz
Luna

