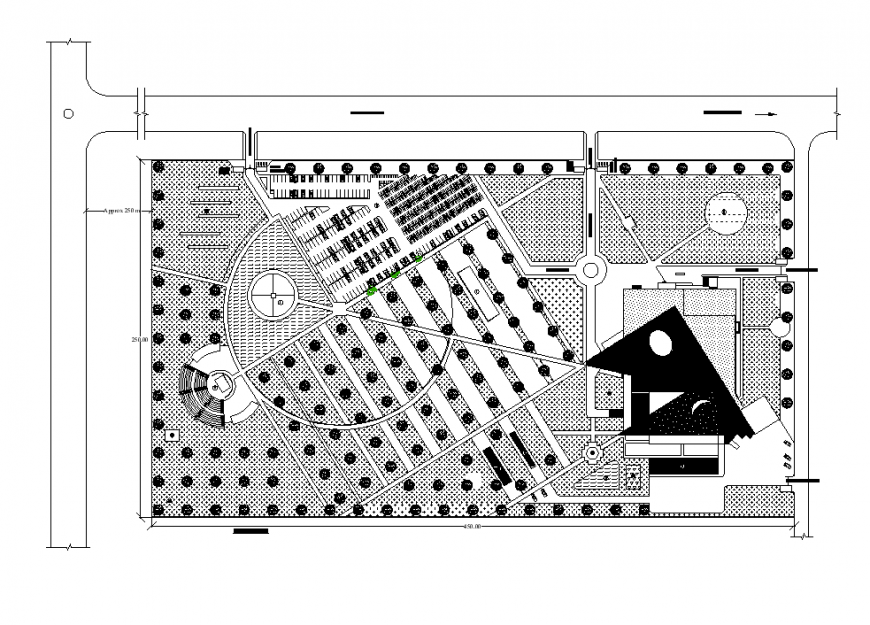
Convention center detail layout 2d view plan autocad file
Description
Convention center detail layout 2d view plan autocad file, top elevation detail, road detail, footpath detail, building detail, landscaping trees detail, hatching detail, dimensions detail, cut out detail, hidden line detail, area detail, etc.
Uploaded by:
Eiz
Luna

