Elevator machinery CAD structure layout autocad file
Description
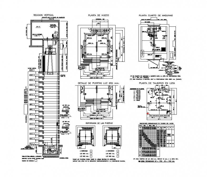
Elevator machinery CAD structure layout autocad file, concrete detail, cross section line detail, cable detail, electric motor detail, nut and bolt for joints and connection detail, dimensions detail, hatching detail, floor level detail, specification table detail, wire detail, hidden line detail, steel structure detail, etc.
File Type:
DWG
File Size:
242 KB
Category::
Mechanical and Machinery
Sub Category::
Elevator Details
type:
Gold
Uploaded by:
Eiz
Luna

