Working Table Design DWG
Description
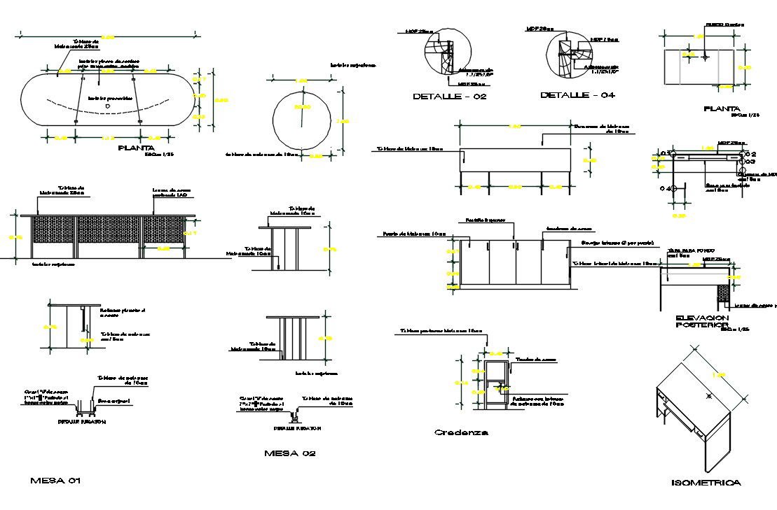
Working Table Design DWG; All detail Install acrylic plates for joint between modules, board Melaminede 25mm, Iron laminate LAC perforated. download free DWG file and get more detail about table drawing.
Uploaded by:
Priyanka
Patel

