LOGIN
HOME
CATEGORIES
UPLOAD FILE
PRICING
HOUSE PLAN
ABOUT US
CONTACT US
Family house details
Home
Categories
Architecture
House Plan
Family house details
Uploaded by:
Mehul
Patel
View Profile
View Profile
Description
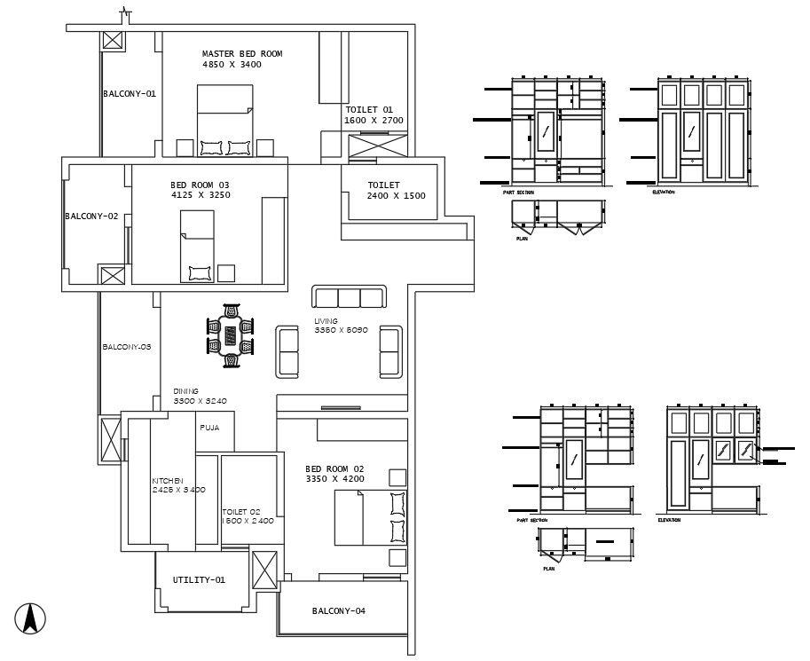
Family house details layout plan, furniture details in a wood broad , raised floor, study table , dower, kitchen, bedroom, dining room, living room.
File Type:
Autocad
File Size:
346 KB
Category::
Architecture
Sub Category::
House Plan
type:
Gold
Uploaded by:
Mehul
Patel
View Profile
Download
Add to libary
find Latest
Related
Files