Factory lift details
Description
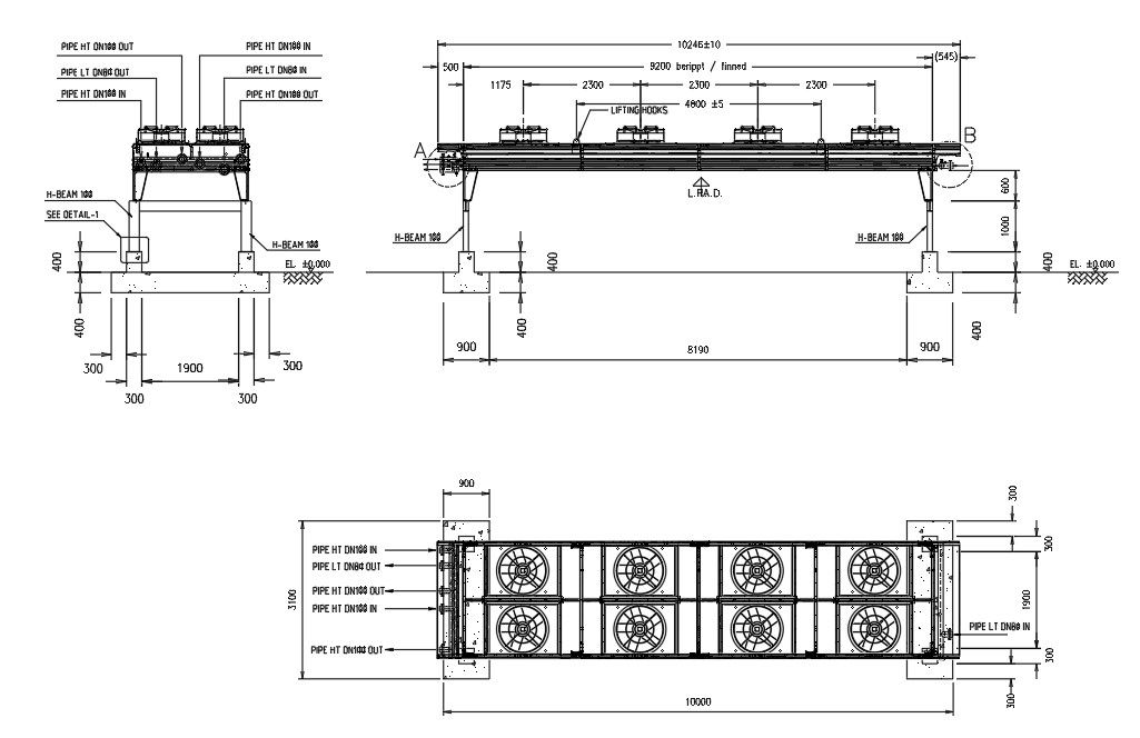
Factory lift details foundation details , beam details , technical data, structure details, circuits on upon the other,
fins throughout.
File Type:
Autocad
File Size:
939 KB
Category::
Mechanical and Machinery
Sub Category::
Factory Machinery
type:
Gold
Uploaded by:
Mehul
Patel

