LOGIN
HOME
CATEGORIES
UPLOAD FILE
PRICING
HOUSE PLAN
ABOUT US
CONTACT US
Drainage system details
Home
Categories
Structure
Footing Detail
Drainage system details
Uploaded by:
Mehul
Patel
View Profile
View Profile
Description
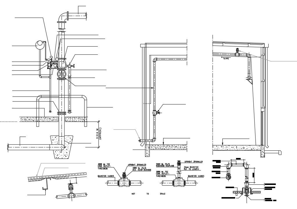
Drainage system details upright sprinkler, reducing coupling, std elbow , nipple. branching , sprinkler cap assembly, pendent sprinkler head, diameter cut to length.
File Type:
3d max
File Size:
1.9 MB
Category::
Structure
Sub Category::
Footing Detail
type:
Gold
Uploaded by:
Mehul
Patel
View Profile
Download
Add to libary
find Latest
Related
Files