LOGIN
HOME
CATEGORIES
UPLOAD FILE
PRICING
HOUSE PLAN
ABOUT US
CONTACT US
plumbing in transitional Detail
Home
Categories
Architecture
Industrial Plant
plumbing in transitional Detail
Uploaded by:
Albert
stroy
View Profile
View Profile
Description
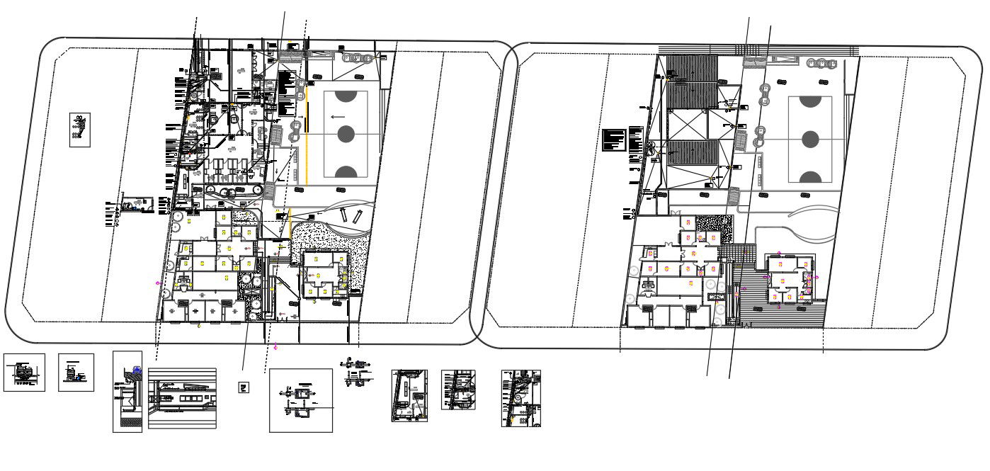
This Plumbing detail Free run off, Aproviding and put new grids drain detail see, Splice connection with existing street.
File Type:
Autocad
File Size:
1.4 MB
Category::
Architecture
Sub Category::
Industrial Plant
type:
Gold
Uploaded by:
Albert
stroy
View Profile
Download
Add to libary
find Latest
Related
Files