Rainwater Harvesting Plan DWG File with Section and Tank Details
Description
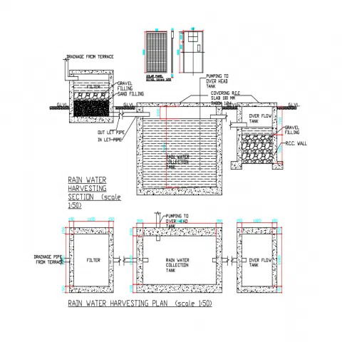
Download the rainwater harvesting plan DWG file with sectional details showing filter tank, collection tank, overflow tank, gravel filling, and pumping system layout.
Uploaded by:
Eiz
Luna

