Drawing detail of super market mall building floor plan dwg file
Description
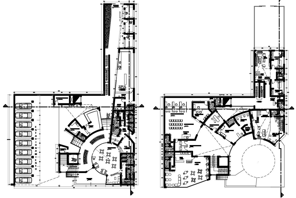
Drawing detail of super market mall building floor plan dwg file that shows work drawing detail floor plan of building along with dimension hidden liner detail parking space detail boundary wall detail furniture layout detail in building also shown in drawing.

Uploaded by:
Eiz
Luna

