Roof gable and brick wall design dwg file
Description
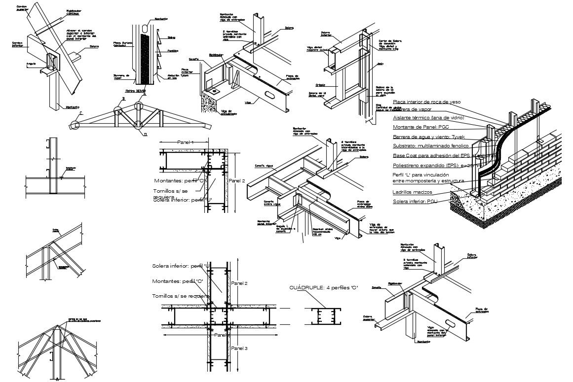
Roof gable and brick wall design dwg file that shows roofing structure details along with roofing material details along with welded bolted joints and connections details. Brick masonry wall details along with angle sections details also included in drawings.

Uploaded by:
Eiz
Luna

