Urban house 2d plan dwg autocad file
Description
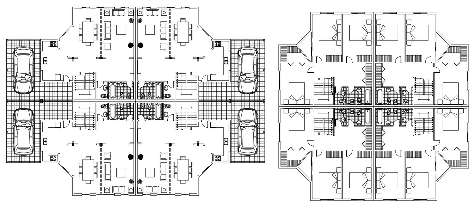
Urban house 2d plan dwg autocad file that shows work plan drawings details with floor level details and furniture blocks details in house parking space details, sanitary toilet bathroom details along with room details of drawings room, bedroom, kitchen and dining area details also included in drawings.
File Type:
DWG
File Size:
683 KB
Category::
Interior Design
Sub Category::
House Interiors Projects
type:
Gold

Uploaded by:
Eiz
Luna
