Luxurious hotel building plan autocad file
Description
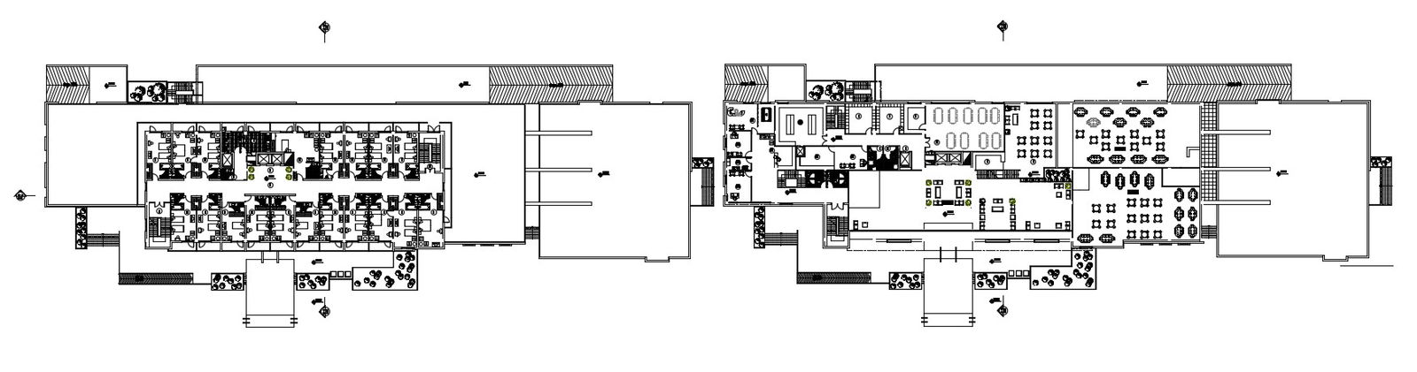
Luxurious hotel building plan autocad file that shows building floor plan details along with Furniture layout plan details in building, staircase details ramp details also included in drawings.

Uploaded by:
Eiz
Luna
