Hotel design layout autocad drawing
Description
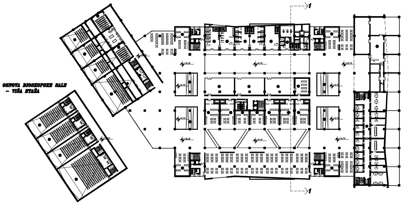
Hotel design layout autocad drawing that shows building floor layout plan details along with floor level details and section line details. Furniture layout plan details in building with section line staircase details ramp details also included in drawings.

Uploaded by:
Eiz
Luna

