Two story SIngle house residence dwg file
Description
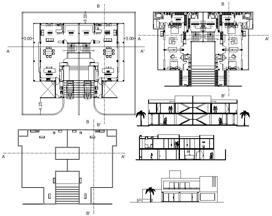
Two story SIngle house residence dwg file that shows work plan drawing details of house along with room details of drawings room, bedroom, kitchen and dining area, sanitary toilet and bathroom details. Furniture layout details in house with house elevation and sectional details of house also included in drawing.

Uploaded by:
Eiz
Luna

