Footing plan of RCC structure dwg file
Description
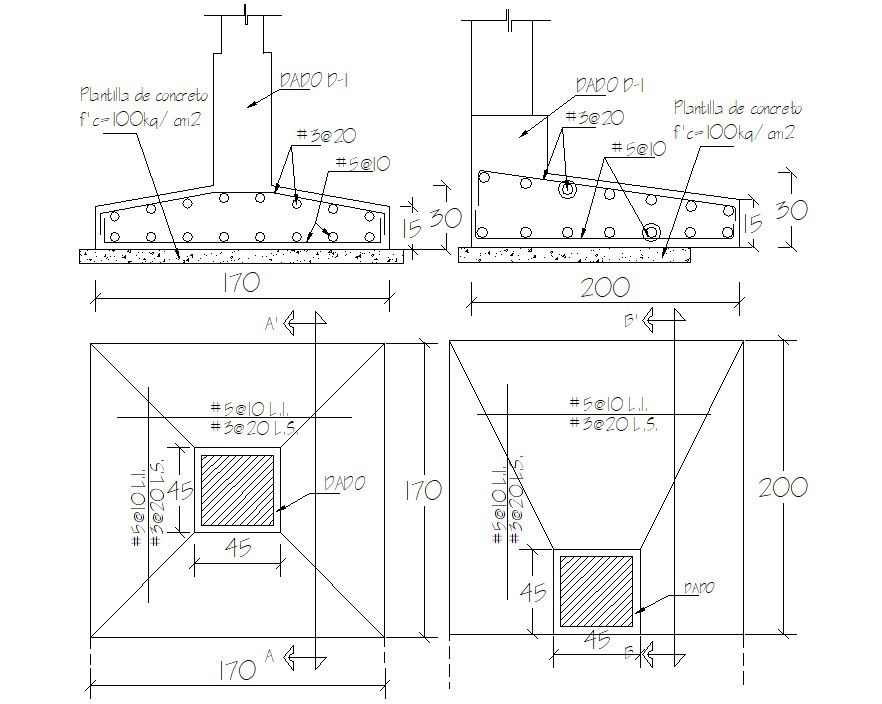
Footing plan of RCC structure dwg file that shows reinforcement details in tension and compression zone along with main and distribution hook up and bent up bars details. Stirrups are provided to hold up bars in position and the structure is a reinforced concrete cement (RCC) structure.

Uploaded by:
Eiz
Luna

