LOGIN
HOME
CATEGORIES
UPLOAD FILE
PRICING
HOUSE PLAN
ABOUT US
CONTACT US
Roof design Plan AutoCAD Drawing
Home
Categories
Details
Construction Details
Roof design Plan AutoCAD Drawing
Uploaded by:
Jiya
View Profile
View Profile
Description
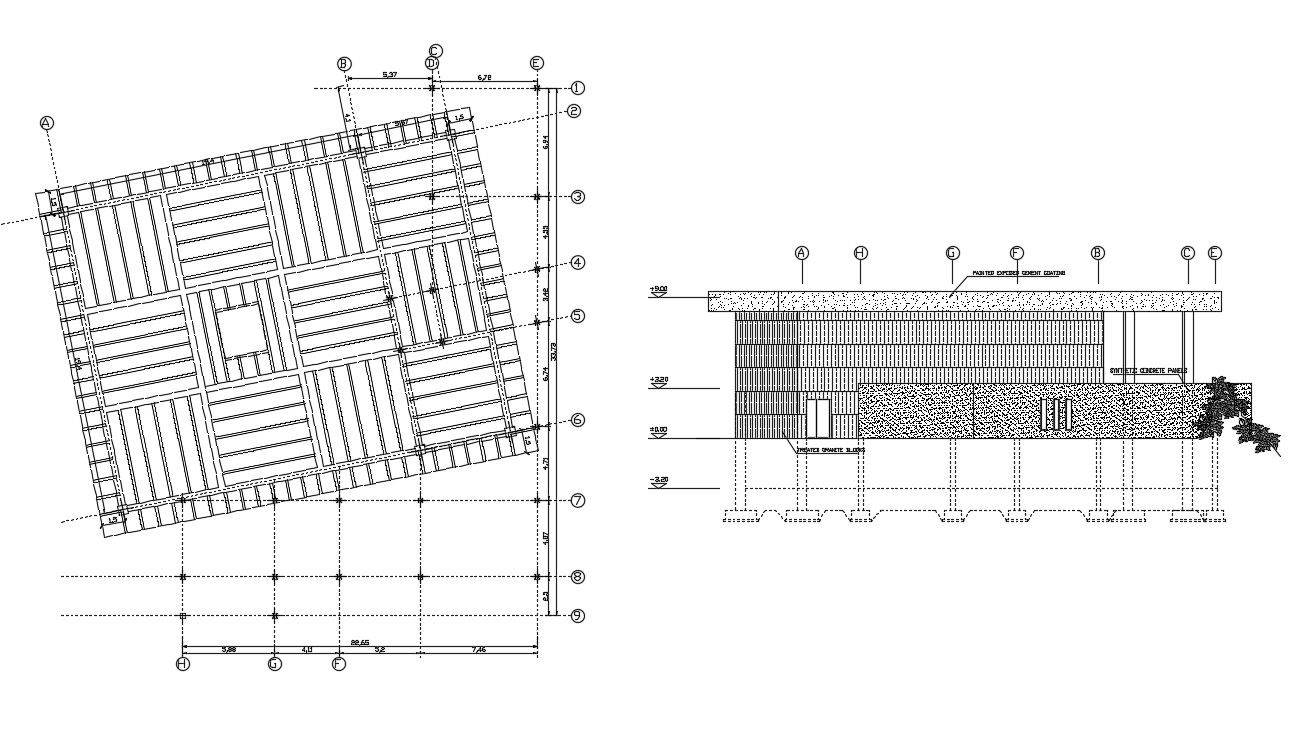
Roof plan and building elevation drawings in DWG file that shows roofing structure plan details along with dimension details and building side elevation details.
File Type:
DWG
File Size:
654 KB
Category::
Details
Sub Category::
Construction Details
type:
Gold
Uploaded by:
Jiya
View Profile
Download
Add to libary
find Latest
Related
Files