Download Hotel Plan Design CAD File
Description
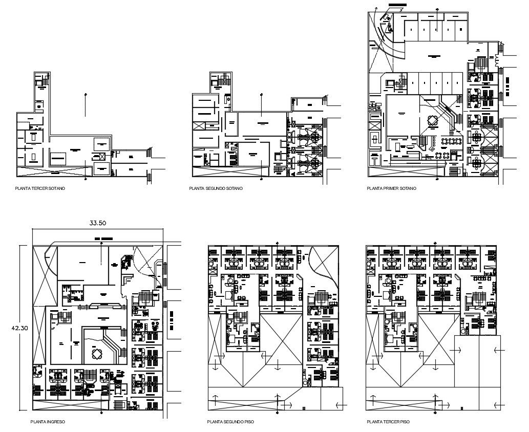
CAD drawings details of hotel building layout floor plan file that shows work plan drawings details of building along with furniture layout details and building length width details. Staircase details dimension hidden line details also included in drawings.
Uploaded by:

