Download Apartment building floor plan CAD drawing
Description
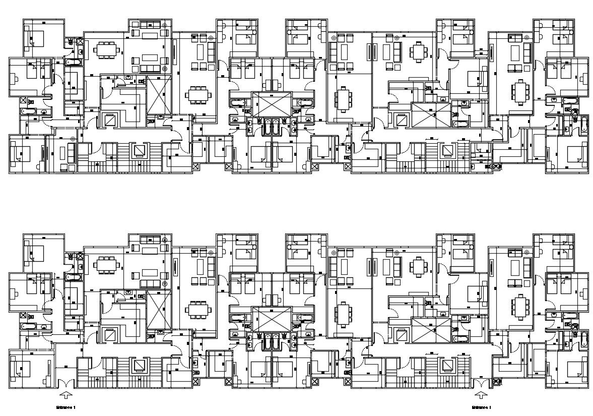
Residential apartment flats CAD drawing that shows fully furnished house plan along with roof details of drawing room, bedroom, kitchen and dining area, sanitary toilet and bathroom details. Floor level details with dimension details also included in drawing.
Uploaded by:

