Simple Bathroom design CAD file download
Description
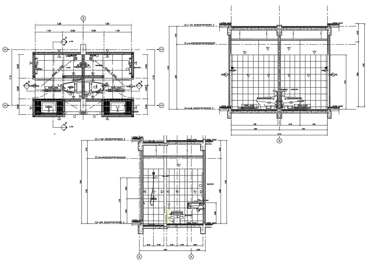
CAD plan and section drawing details of bathroom blocks dwg file that shows bathroom design plan along with sectional details of bathroom. Sanitary and plumbing CAD blocks details of washbasin water closet shower area details also included in drawing.
File Type:
DWG
File Size:
545 KB
Category::
Interior Design
Sub Category::
Bathroom Interior Design
type:
Gold
Uploaded by:
