Building design plan CAD file download
Description
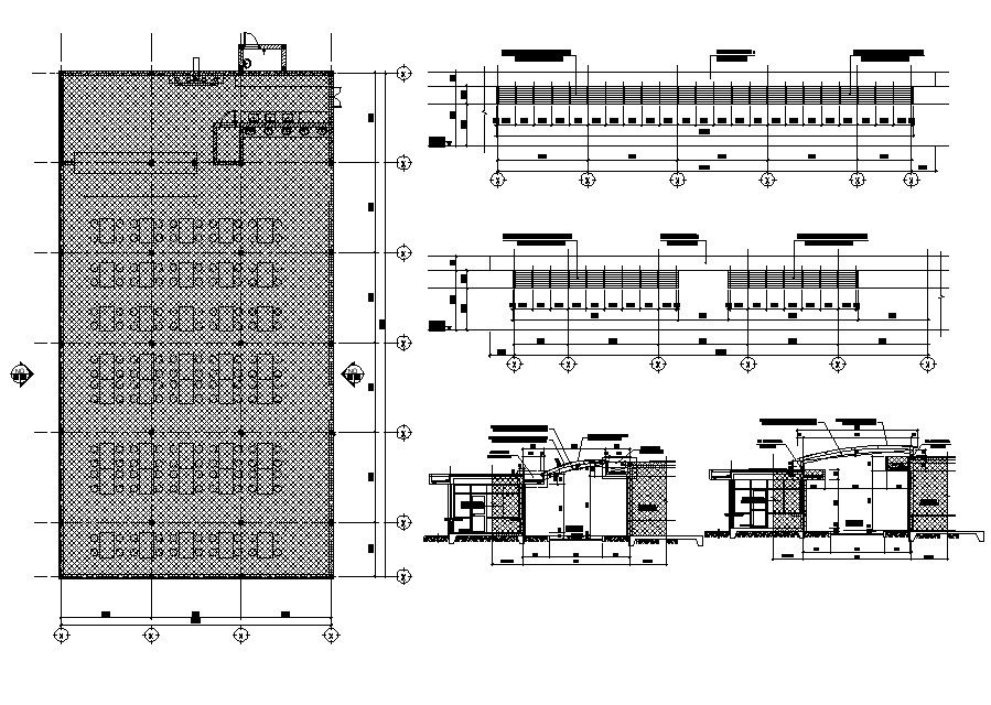
Architectural plan and sectional drawing of commerce building DWG file that shows work floor layout plan drawing details of building along with dimension hidden line details.Section line details along with sectional details of building structure also included in drawing.
Uploaded by:
