LOGIN
HOME
CATEGORIES
UPLOAD FILE
PRICING
HOUSE PLAN
ABOUT US
CONTACT US
Restaurant Plan Drawing
Home
Categories
Architecture
Hotels and Restaurants
Restaurant Plan Drawing
Uploaded by:
Komal
View Profile
View Profile
Description
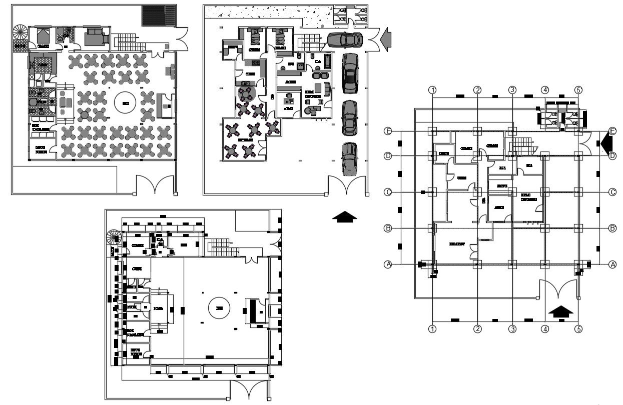
Restaurant Plan Drawing AutoCAD file includes layout plan, and foundation plan shows dining area, office cabins, and bathroom with furniture and dimension details.
File Type:
DWG
File Size:
1.2 MB
Category::
Architecture
Sub Category::
Hotels and Restaurants
type:
Gold
Uploaded by:
Komal
View Profile
Download
Add to libary
find Latest
Related
Files