Kitchen & Store Room Detail

Kitchen & Store Room Detail
Profile

Uploaded by:

Albert

stroy

Description
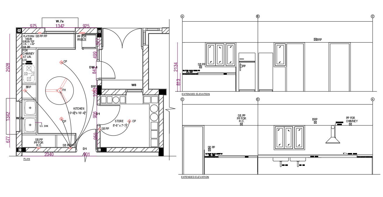
Modern design of kitchen detail about cupboard, cabinet door, solid wooden panel, gas & fridge storage, dining table also detailing of plan in all side of modular kitchen design.
Profile

Uploaded by:

Albert

stroy

find Latest

Related Files

WhatsApp Chat