LOGIN
HOME
CATEGORIES
UPLOAD FILE
PRICING
HOUSE PLAN
ABOUT US
CONTACT US
Interior kitchen Detail
Home
Categories
Interior Design
Kitchen Interiors
Interior kitchen Detail
Uploaded by:
Albert
stroy
View Profile
View Profile
Description
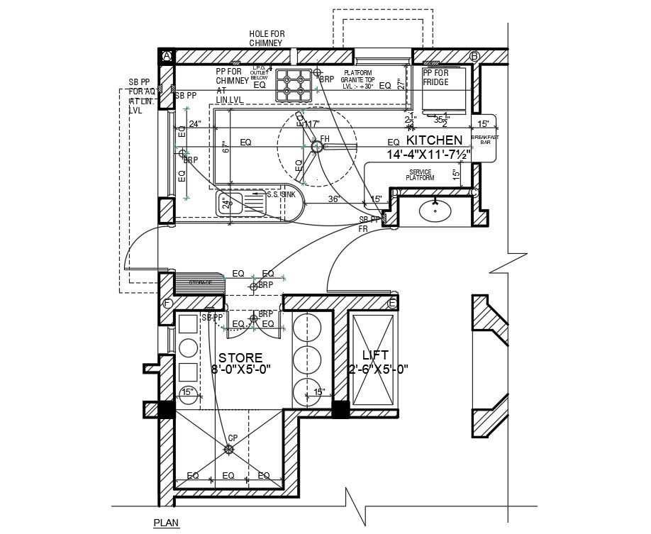
This Kitchen Design of Interior Detail with lay-out detail. and this kitchen design draw in autocad format.
File Type:
Autocad
File Size:
57 KB
Category::
Interior Design
Sub Category::
Kitchen Interiors
type:
Gold
Uploaded by:
Albert
stroy
View Profile
Download
Add to libary
find Latest
Related
Files