LOGIN
HOME
CATEGORIES
UPLOAD FILE
PRICING
HOUSE PLAN
ABOUT US
CONTACT US
AutoCAD Building section detail drawing
Home
Categories
Architecture
Single Story Apartment
AutoCAD Building section detail drawing
Uploaded by:
Jiya
View Profile
View Profile
Description
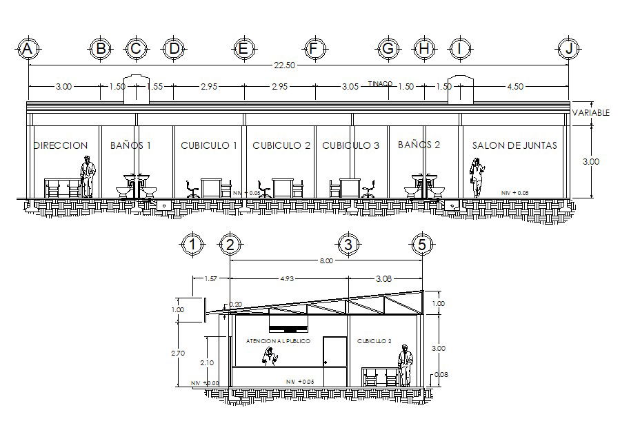
Single story building section CAD drawing that shows sectional drawing along with floor level details and leveling details.
File Type:
DWG
File Size:
398 KB
Category::
Architecture
Sub Category::
Single Story Apartment
type:
Gold
Uploaded by:
Jiya
View Profile
Download
Add to libary
find Latest
Related
Files