LOGIN
HOME
CATEGORIES
UPLOAD FILE
PRICING
HOUSE PLAN
ABOUT US
CONTACT US
2d Floor Plan Layout of Kitchen CAD Drawing
Home
Categories
Interior Design
Kitchen Interiors
2d Floor Plan Layout of Kitchen CAD Drawing
Uploaded by:
Jiya
View Profile
View Profile
Description
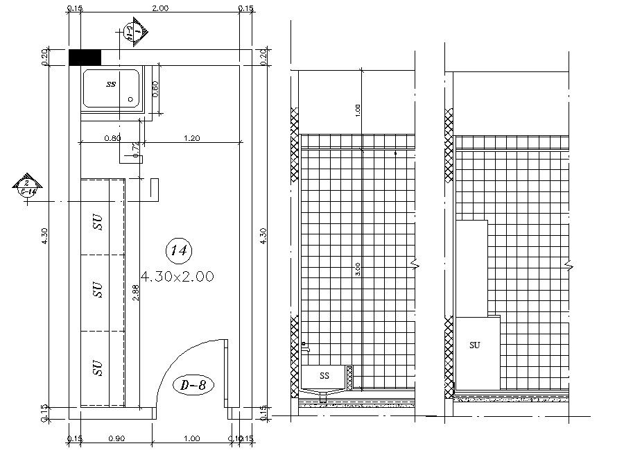
CAD drawing Kitchen plan and section that shows the kitchen layout plan along with kitchen sectional details also included in the drawing.
File Type:
DWG
File Size:
535 KB
Category::
Interior Design
Sub Category::
Kitchen Interiors
type:
Gold
Uploaded by:
Jiya
View Profile
Download
Add to libary
find Latest
Related
Files