LOGIN
HOME
CATEGORIES
UPLOAD FILE
PRICING
HOUSE PLAN
ABOUT US
CONTACT US
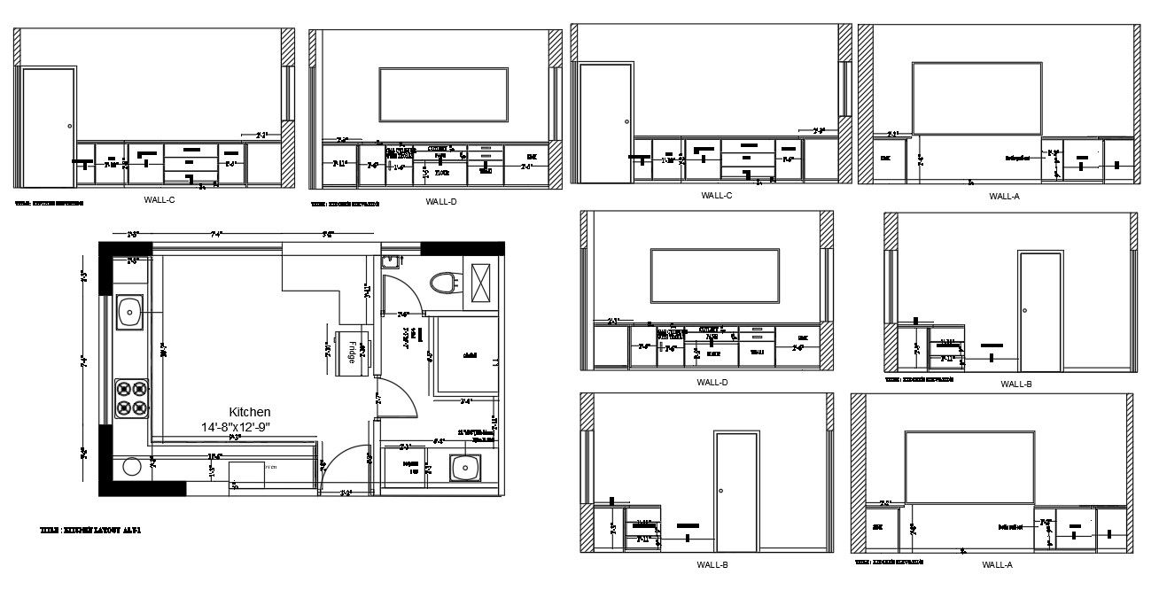
Kitchen interior detail
Home
Categories
Interior Design
Kitchen Interiors
Kitchen interior detail
Uploaded by:
Albert
stroy
View Profile
View Profile
Description
This kitchen design draw in autocad format. & All side section & elevation design mansion the drawing with detail & Dimension.
File Type:
Autocad
File Size:
143 KB
Category::
Interior Design
Sub Category::
Kitchen Interiors
type:
Gold
Uploaded by:
Albert
stroy
View Profile
Download
Add to libary
find Latest
Related
Files