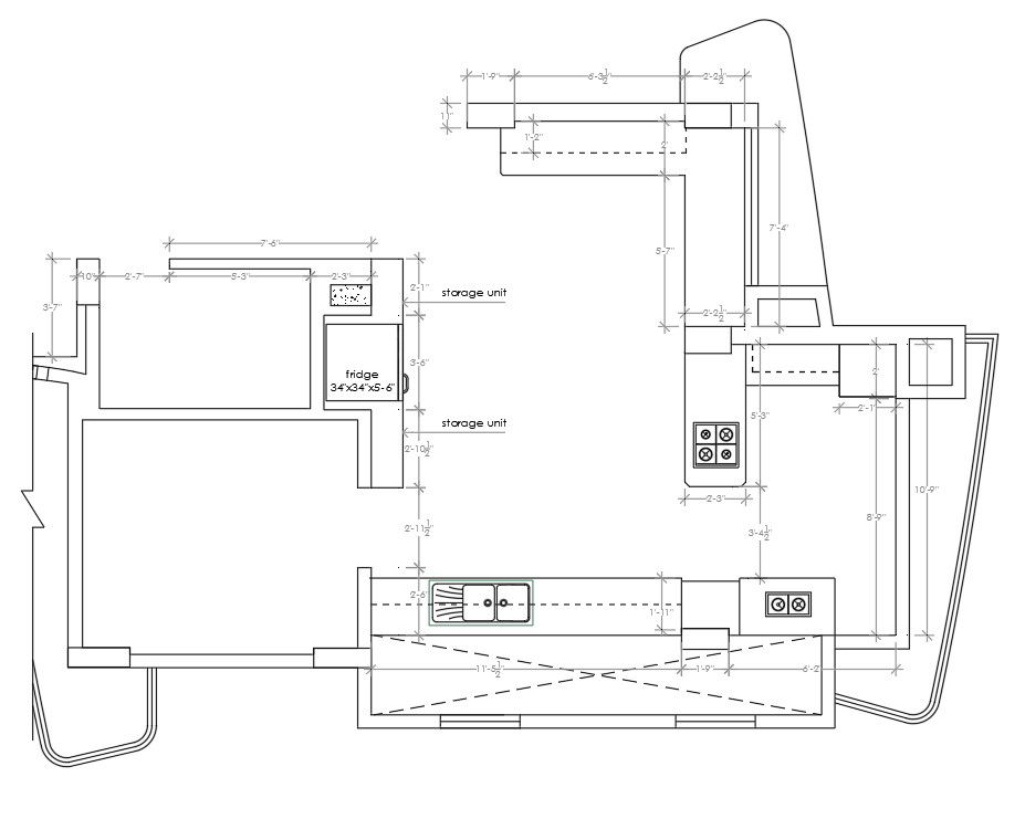
Different type kitchen Design
Description
Different type kitchen Design. Technological advances during industrialization brought major changes to the
kitchen. Iron stoves, which enclosed the fire completely and were more efficient, appeared.
Uploaded by:
Albert
stroy
