Restaurant Kitchen Design

Restaurant Kitchen Design
Profile

Uploaded by:

Albert

stroy

Description
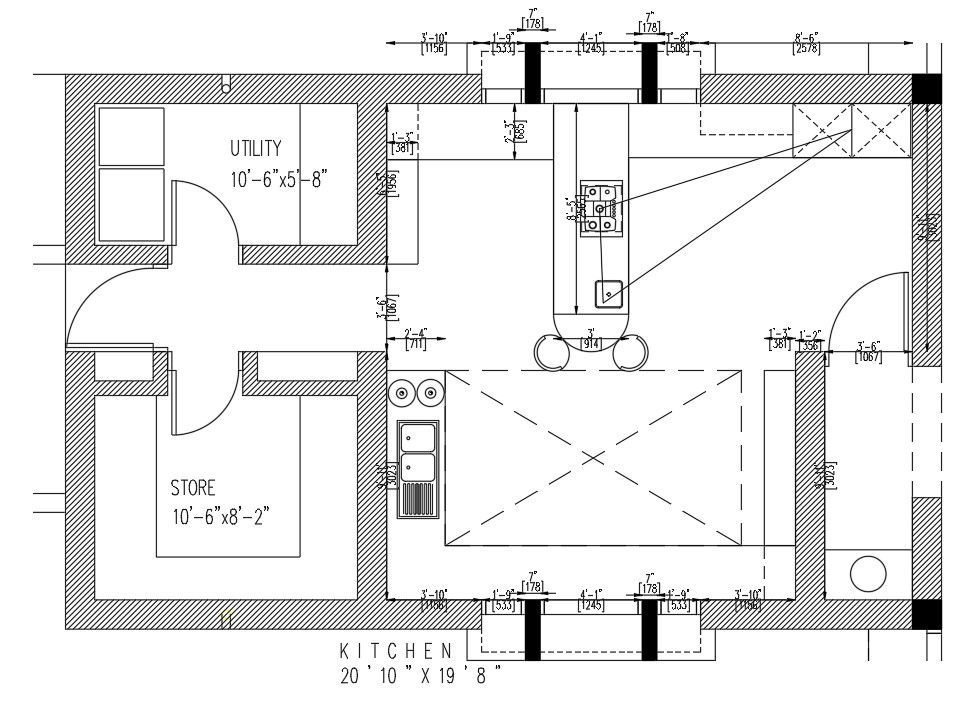
Kitchen Design Detail Plat form, Drainage line , Dish Washer, Gas Stove detail.
Profile

Uploaded by:

Albert

stroy

find Latest

Related Files