Commerce Hub CAD Drawing Download

Commerce Hub CAD Drawing Download
Profile

Uploaded by:

Jiya

Description
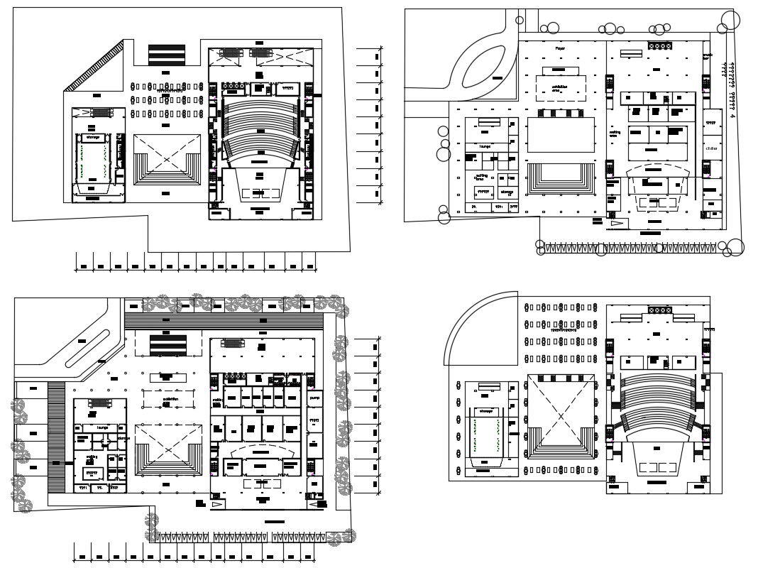
CAD plan of the commercial Auditorium building floor plan that shows the work plan of four storey building along with parking space details and furniture blocks details in building.
Profile

Uploaded by:

Jiya

find Latest

Related Files

WhatsApp Chat