Living Apartment CAD Plan Download
Description
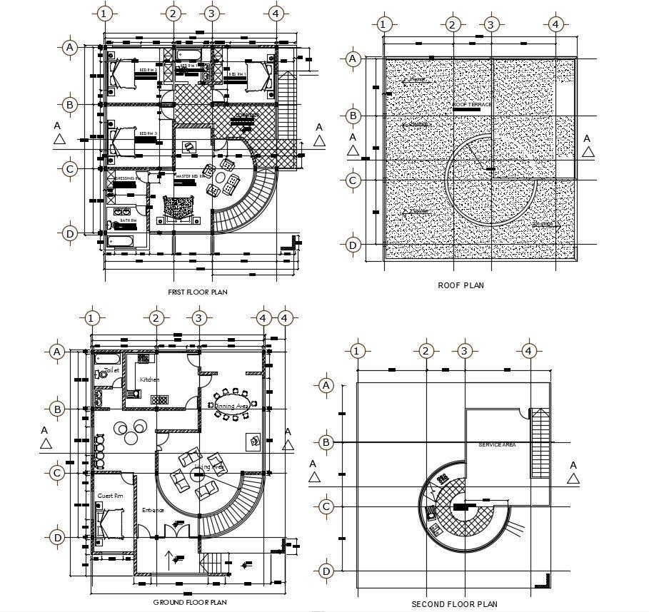
Residential apartment CAD Plan drawing that shows furnished house plan along with room details of the drawing-room, bedroom, kitchen and dining area, sanitary toilet and bathroom details. Floor level details with roof terrace plan details also presented in house CAD plan.
File Type:
DWG
File Size:
486 KB
Category::
Interior Design
Sub Category::
House Interiors Projects
type:
Gold
Uploaded by:

