LOGIN
HOME
CATEGORIES
UPLOAD FILE
PRICING
HOUSE PLAN
ABOUT US
CONTACT US
Industrial Warehouse Design CAD File
Home
Categories
Architecture
Industrial Plant
Industrial Warehouse Design CAD File
Uploaded by:
Jiya
View Profile
View Profile
Description
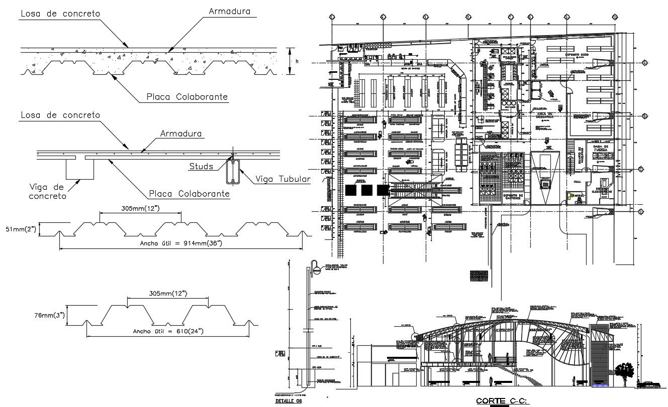
Download industrial building warehouse sectional drawing and plan details along with industrial shed and Curtailment bars details.
File Type:
DWG
File Size:
3.3 MB
Category::
Architecture
Sub Category::
Industrial Plant
type:
Gold
Uploaded by:
Jiya
View Profile
Download
Add to libary
find Latest
Related
Files